Objektart
Adresse
Objektdaten
Informationen
Ausstattung
Details
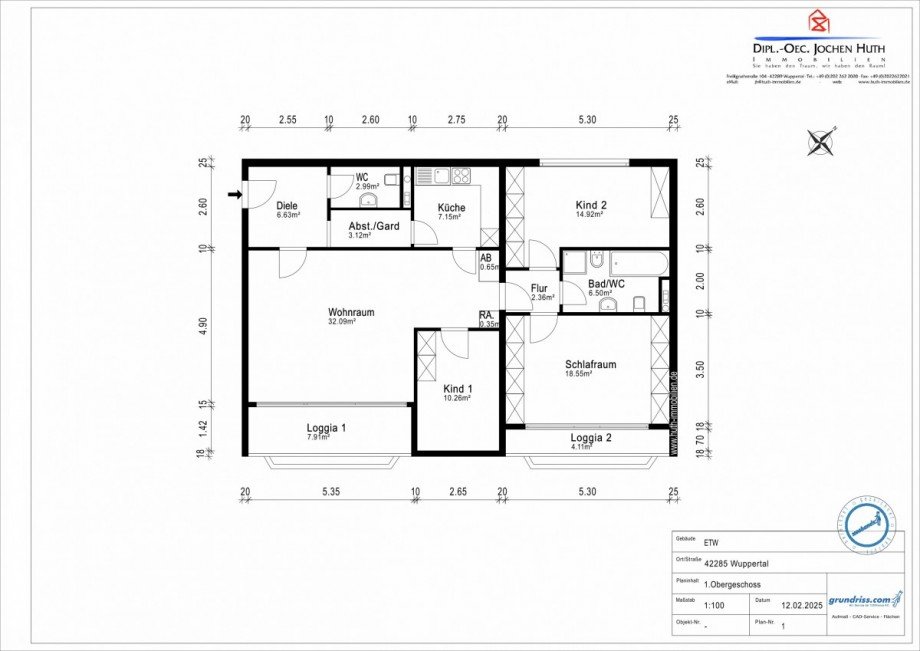
Eine Wohnung in angenehmem, städtischem und doch naturnahem Umfeld (Kothener Busch), die einer Familie mit zwei Kindern leicht Platz bietet. Der Zustand ist gepflegt und fordert keinen allzu hohen Renovierungsbedarf. Änderungen aufgrund zeitbedingter, geschmacklicher Abweichungen verstehen sich von selbst.
Das Haus verfügt über einen Aufzug und es existieren insgesamt und in der Wohnung nur wenige, nennenswerte Schwellen. Der Einstieg der Duschtasse ist niedrig, erfüllt aber (z.B.) nicht ganz die Bedingungen als "Barrierefrei zu gelten - alles in allem aber könnte die Wohnung durchaus sehr interessant für Menschen mit körperlichen Handicaps sein.
A-Z:
Aufzug
Einbauküche
Garderobe
Gäste-Wc
Laubengang
Loggia (2x)
Parkett
Rolläden
Stellplatz (PKW)
Die Wohnung befindet sich im Stadtteil Barmen (Bereich am Kothen) in Wuppertal. Barmen ist ein lebendiger Stadtteil mit einer vielfältigen Mischung aus Wohn- und Geschäftshäusern. Die unmittelbare Umgebung bietet Geschäfte, Restaurants, Schulen und öffentliche Verkehrsmittel, die es den Bewohnern ermöglichen, bequem zu Fuß oder mit dem öffentlichen Nahverkehr zu allen wichtigen Zielen in der Stadt zu gelangen.
Wuppertal selbst ist eine moderne und lebendige Großstadt im westlichen Teil Deutschlands. Die Stadt ist bekannt für ihre kulturellen Einrichtungen, wie Museen, Theater und Konzertsäle, die ein breites Spektrum an Veranstaltungen und Aktivitäten bieten. Die grüne Umgebung und die Nähe zum Bergischen Land machen Wuppertal auch für Naturliebhaber attraktiv, die gerne wandern oder Rad fahren.
Die Lage in der Region Bergisches Land zeichnet sich durch ihre malerischen Landschaften, Wälder und Flüsse aus. Die Region bietet vielfältige Freizeitmöglichkeiten wie Wandern, Radfahren, Wassersport und vieles mehr. Die gute Verkehrsanbindung an die umliegenden Städte wie Düsseldorf und Köln macht das Bergische Land zu einem attraktiven Wohnort für Pendler und Naturliebhaber gleichermaßen.
Bitte beachten Sie, dass alle Aussagen auf Angaben der Veräußerer oder ihrer Vertreter basieren und wir hierfür keine Haftung oder Gewähr übernehmen können.
Das Angebot ist freibleibend und Preisänderungen sowie Zwischenverkauf oder Zwischenvermietung sind vorbehalten.
Wir empfehlen jedem Interessenten, vor dem Kauf einen Experten eigener Wahl (z.B. einen Gutachter) hinzuzuziehen, um das Objekt überprüfen zu lassen.
Wenn Sie Interesse am hier präsentierten Objekt haben, bitten wir Sie, uns über das Kontaktformular auf dieser Seite zu kontaktieren, bevor Sie anrufen.
Vielen Dank!
Wir verfügen über einen Exklusivauftrag.
Links
Energieausweis (Verbrauchsausweis)
123,70 kWh / (m²*a) Energieverbrauchskennwert
123,70 kWh / (m²*a) Energieverbrauchskennwert
123,70 kWh / (m²*a) Energieverbrauchskennwert
Weitere Informationen
| Wesentlicher Energieträger | Erdgas leicht |
| Energieausweis Ausstelldatum | 2020-08-21 |
| Energieausweis gültig bis | 20.08.2030 |
| Energieausweis Jahrgang | ab dem 1.5.2014 |
| Energieausweis Werteklasse | D |
| Energieausweis Baujahr | 1972 |
| Energieausweis Gebäudeart | Wohngebäude |
| Heizung | Zentralheizung |
| Befeuerung | Gas |
Objektanfrage
Eine Angabe personenbezogener Daten ist hierfür nicht notwendig.
